
143㎡現代風排屋,灰色外殼下的精致與舒適
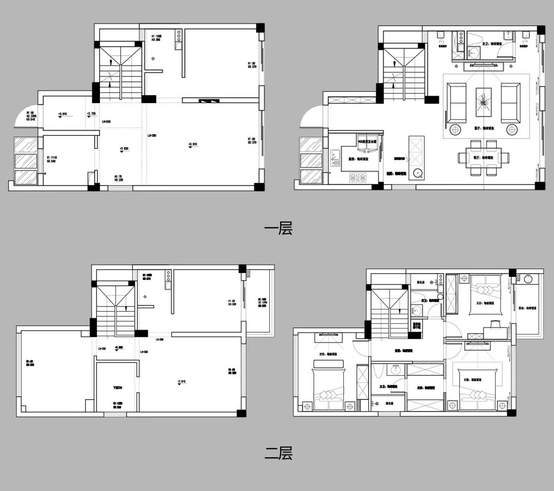
項目信息 / 地址:溪澗堂 城市:中國 杭州 戶型:疊排排屋 面積:143㎡ 風格:現代風格 設計施工:浙江南鴻裝飾 找一個好朋友,找一個好天氣, 找一棵結滿果子的樹,搖下幾顆甜美的果子。 等待微風輕輕吹拂,觀看白云靜靜流散。 / 本案為三口之家,設計師運用簡潔的線條和純粹的色彩,讓空間擁有了很強的包容性。居室以中性灰為基調,同色系的軟硬裝材質對空間進行調性統一,打造沉穩大氣的感受。金屬元素的點綴提亮空間,并平衡冷暖,讓其更顯精致。 #戶型設計 玄關 Hallway 玄關做適量的儲物設計,底部留空放常穿的鞋子并自然融入換鞋區,打造出入戶的便捷體驗。 客廳 Living Room 客餐廳聯系緊密,風格統一,不過在吊頂上還是做了巧妙的區分。 客廳空間總體克制沉穩,無任何花哨的色彩或軟裝布置,沙發、茶幾線條簡潔,傳遞著讓人安心的氣息。不同質感的灰于此相遇,在光的擁抱下呈現出了豐富的表情,展露著細膩的溫暖。 皮藝、大理石、銅飾面等材質搭配和諧,豐富視覺上的層次。通透的日照光線,讓這個灰色的現代空間被暈染得更加柔和。 餐廳 Dining Room 餐廳布置輕松而隨意,餐桌四面留空所形成的環形動線讓空間擁有了流暢的互動關系。背景墻懸掛三幅裝飾畫做簡單裝飾,金屬邊框與頂面呼應,共塑精致氛圍。 廚房 Kitchen 西廚島臺與餐廳相連,拉近彼此的關系。中西結合的廚房設計,在提高使用頻率的同時,還可以加強家人間的日常互動,一舉多得。 中廚本身面積不算大,因此選擇了淺色系廚柜、墻地磚來盡量地放大空間視感,整體顯得明亮簡潔,讓烹飪美食的過程變得無比舒心。 臥室 Bedroom 主臥延續了簡約的空間基調,深深淺淺的中性色帶來肅穆和干凈的感覺,大大的落地窗能讓人盡情體驗到窗外四季的自然流轉,春日的生機勃勃、秋日的落葉紛紛,空間在自然的助力下,成功啟開與人的內在共鳴。 次臥留給親友偶住,沒有無用的裝飾堆砌,空間十分寬敞透亮。 淡然清雅的色彩勾勒安心入睡的場景,床頭一側墻面開辟壁龕,增加小物的收納空間。 床尾墻面也重點設計為更具實用性的儲物柜組合展示柜的形式。

















免費
免費申請戶型規劃
專屬設計師免費1對1全程服務
已經有3794人申請
24小時免費咨詢電話
400-8800-618
你家預算
108080元