
紅街公寓137㎡現代風格設計 | 一所明朗簡凈的有愛之家

本案為紅街公寓137方現代風格設計,業主是一對熱愛生活的夫妻倆,有兩位可愛的小公主,希望家里溫馨時尚、簡約大方,同時擁有足夠的收納空間。
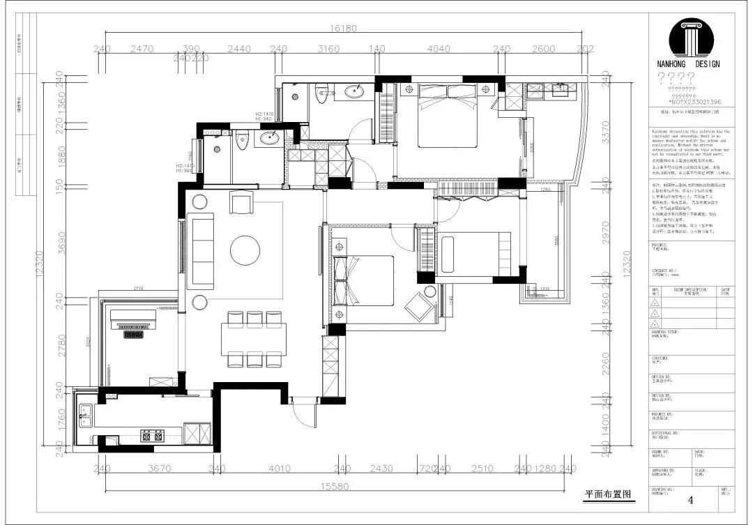
戶 型 圖 設計說明: 更改了次衛門的方向,將進衛生間門口的過道改成了儲藏間,增加儲物空間; 次臥向兒童房借了衣柜的空間,兒童房又包進陽臺,從而保證兩個區域都能擁有足夠的生活面積。 客廳,地面通鋪大理石瓷磚,頂面線條極簡,一側背景墻選用大面積KD板包覆,呈現簡約基調。 客廳與餐廳呈開放式布局,確保空間采光與通透性。家具間不同材質的碰撞,搭配各色靠枕與菱形式樣地毯,打造出輕盈時尚的生活環境。 客廳望向玄關視角。入戶口設計了功能齊全的玄關柜,滿足業主日常需求。電視背景墻一側,懸空式地臺取代了傳統電視柜,整體效果看起來更為大氣。 餐廳,黑色餐桌線條利落,造型簡約,絨面的磚紅色長凳在金色元素的點綴下顯現出小輕奢的格調。 陽臺與餐廳相鄰,做了一個到頂柜,保留一定儲物空間。儲物柜旁還設計了黑板墻,供孩子們盡情發揮自己天馬行空的想象力。 透過各種充滿童趣的小物件就能看到這個家的有愛氛圍~ 廚房呈L型布局,木質櫥柜搭配黑色拉手和水磨石臺面,簡潔清爽,高低臺的設計更貼合人們日常的下廚習慣。 主臥,墨綠色背景墻搭配深黑色矮背床,深沉的色系更容易營造靜謐的睡眠氛圍。 兒童房,選用柔和色系搭配各種玩偶元素來裝扮這個童心空間,用上下鋪實現居住功能,樓梯則作為隱蔽的抽屜解決一些儲物問題。 | 地址:紅街公寓 | 面積:137㎡ | 風格:現代 | 設計施工:浙江南鴻裝飾

















下一篇:五大主流裝修風格優劣詳解!
免費
免費申請戶型規劃
專屬設計師免費1對1全程服務
已經有3792人申請
24小時免費咨詢電話
400-8800-618
你家預算
108080元